Anmeldung ARCHIVISTICA 2026 Hof (Saale)
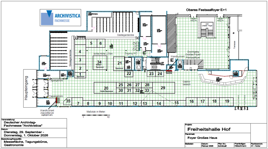
Messeplan Download
Nachstehend haben Sie die Möglichkeit, einen oder mehrere Messestände, einen Zeitslot für das Ausstellerforum und eine Werbemöglichkeit auf der Ausstellerliste verbindlich zu buchen.
Buchung ARCHIVISTICA 2026
24.03.2026, 15:20
